De NOVA

PROJECTEN
 - Publiek
00/00
De NOVA    secundaire school

Het project is een prikkelende ontwerpopgave. Een school die geen school wenst te zijn, maar een stadsdeel, een campus, een congresplek, … Een plek waar scholieren en leercoaches op zoek gaan naar prikkels en van daaruit goesting krijgen om zich te verdiepen in een onderwerp. Een school die ostentatief een maak- en leerplek wil zijn die ook bewoond wordt door elkeen met een relevante expertise, ambachtslieden en doctoraatstudenten, loodgieters en kunstenaars, buurtbewoners en fervente stadstuiniers, … Een plek waar vrijheid samengaat met betrokkenheid. Een leerplek waar de scholier de regie in handen neemt.
 
Zo een durf-al programma vraagt om een gebouwde en ongebouwde vorm die al even prikkelend als evolutief is. Alles is ‘school’. Ieder onderdeel heeft twee of meer functies. Elke binnen- en buitenplek heeft leer- en verblijfpotentieel. Wat deze school nodig heeft is het vrije elektron. Gedefinieerde versus ongedefinieerde/ vrij-invulbare ruimte.
 
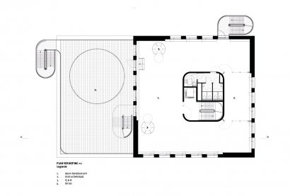
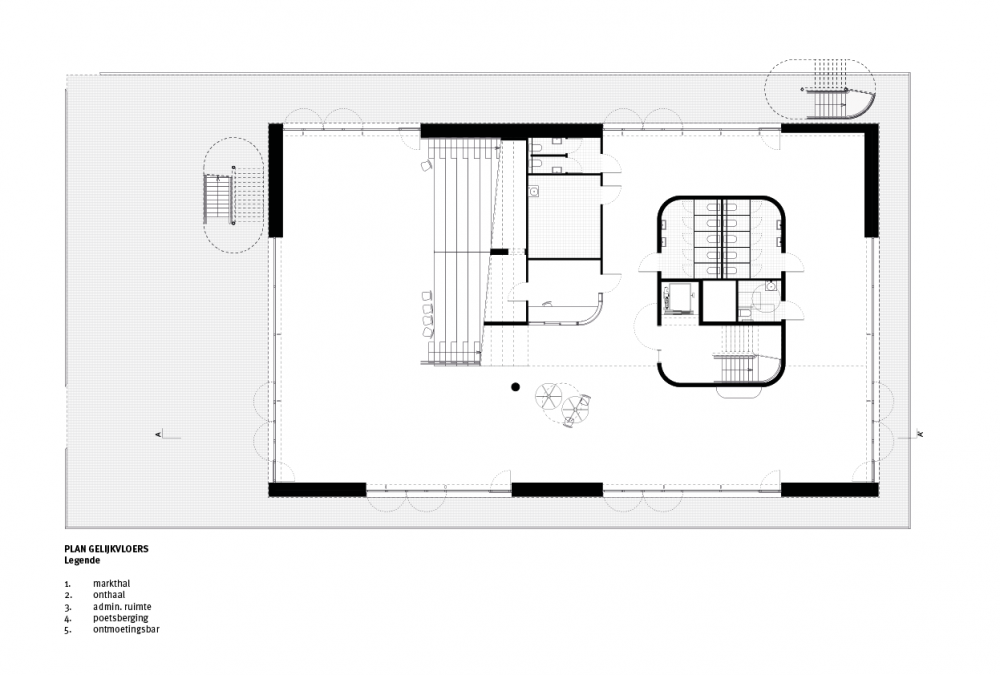
Het hart van de school is de markthal: een ruimte die dankzij de (beperkte) invulling met onder meer een tribunetrap, een ‘ontmoetingsbar’, variatie in hoogtes en breedtes een zeer divers gebruik toelaat.
De markthal gaat de dialoog aan met het cirkelplein: zowel binnen als buiten vindt de leerling een plaats om te leren, om te werken, om iets te vieren.
 
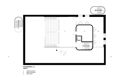
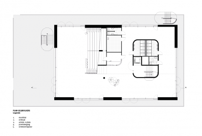
De leerplateaus zijn multi-inzetbaar: kolomloze ruimtes rond een structurele kern met circulatie en sanitair. Door de implementatie van de technische uitrusting in opbouw, kunnen nieuwe klaslokalen op elk plaats in de ruimte ingericht worden. De wanden die een leslokaal afsluiten zijn verplaatsbaar.

Foto: ©️André Nullens

 

programma   nieuwbouw van een secundaire school
opdrachtgever   GO! Onderwijs van de Vlaamse gemeenschap
ligging   Kessel-Lo
gunning   wedstrijd laureaat
projectteam   P.Kint, S.Philippe, P.Walraet, M. Leflot, C. Sannen, M. Peirelinck, P. Steens
adviseurs   Stramien, Paridaens Ingenieurs, RCR studiebureau, Daidalos Peutz
status   oplevering 2025