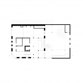
| programma | kinderdagverblijf, kantoren voor het Huis van het Kind, consultatiepunt Kind en Gezin | |
| opdrachtgever | Gemeente Sint-Jans-Molenbeek | |
| ligging | Lessenstraat, Sint-Jans-molenbeek | |
| gunning | wedstrijd laureaat | |
| projectteam | P. Kint, P. Walraet, M. Leflot, S. Philippe, J. Van Loven, P. Steens, C. Sannen, M. Peirelinck, A.Aerts | |
| adviseurs | Paridaens ingenieurs, Atelier T, Daidalos Peutz | |
| status | nazicht aanbesteding 2024 |













